For Sale
4
2

Features

  • A lovely period house
  • Substantial detached barn
  • Gardens and grounds of over 1 acre
  • Very convenient location
  • EPC Band F

Important Information

  • Council Tax Band: G
  • Tenure: Freehold

Property Details

This most attractive detached period cottage is believed to date from the 18th Century originally forming part of the Egerton Estate and occupies a superb position in pleasant rural surrounding with splendid views over open countryside towards the Dane Valley and the distant hills.


Built of mellowed brick under a slated roof, the cottage provides spacious and well planned accommodation which is full of charm and character with a wealth of exposed beams, open fireplaces and a lovely range in the dining kitchen. There is also a useful cellar which has been used as a bar area whilst the lounge and dining room provide lovely formal reception rooms. For day to day use, there is a comfortable family room/snug off the dining kitchen and there is also a utility room and shower room on the ground floor.


To the first floor, the landing leads to four spacious bedrooms and family bathroom.


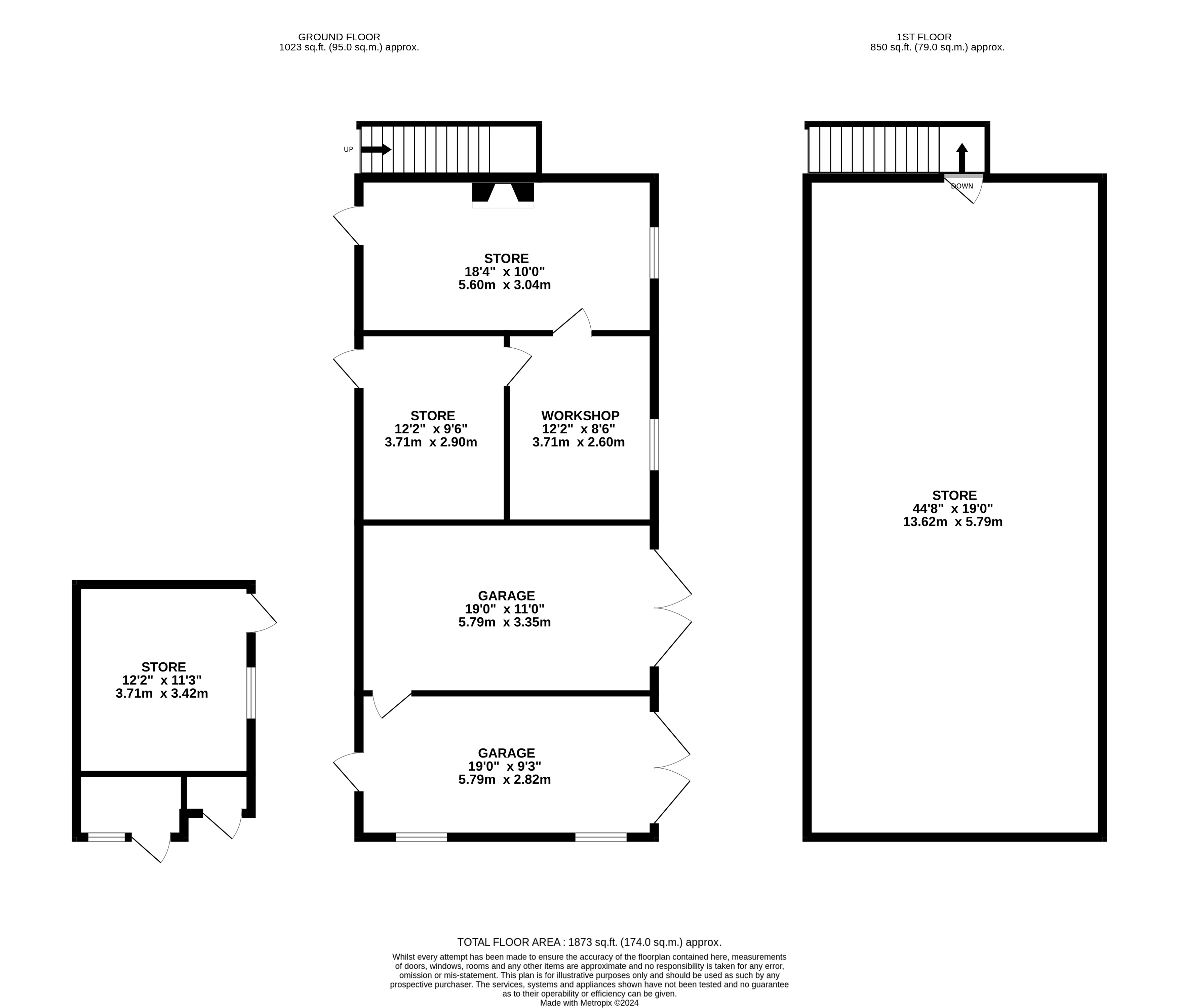
Outside, there is an excellent range of detached outbuildings providing two garages, loose box, tack room and workshop with loft room above the whole and this building provides huge further potential for conversion into ancillary accommodation if required (subject to planning permission). There is a further outbuilding also giving further potential together with greenhouse and boiler room.


The grounds which extend in all to around 1.10 acres are a particular feature of the property and include delightful cottage gardens which are well stocked and a vegetable garden and orchard with fruit trees. There are extensive lawned areas with patio's and these enjoy the best of the views. The cottage is set well back from the road and is approached over a sweeping driveway leading to the garage and areas to park.


Property Information - Main electricity and water are connected. Oil fired central heating is installed. Drainage is to a Klargester septic tank. We must advise prospective purchasers that none of the fixtures or fittings have been tested. Buyers are advised to obtain any independent reports prior to purchase. Tenure - we are informed is Freehold. Council Tax Band - G (Cheshire East Council). EPC Band F.

Virtual Property Tour

Find the perfect property. Sign up for Property Alerts
Copyright Meller Braggins Estate Agents 2026.
Website Design Property Webmasters